grima loussouarn architectes

l'agence

projets

actualités

contact

/par lieu

/par année

/par catégorie

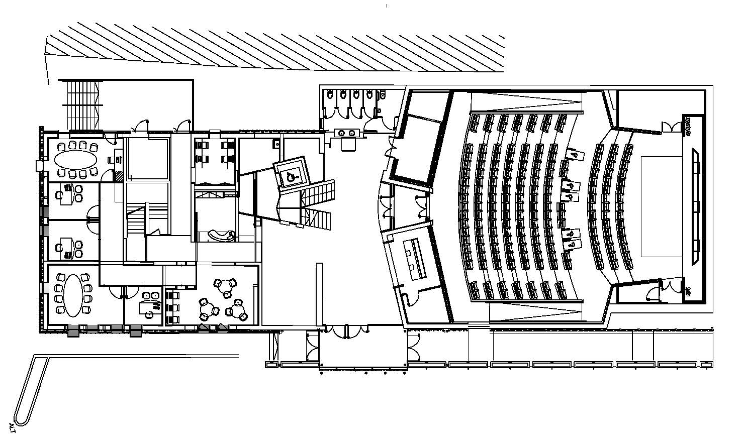
RÉNOVATION DU CINÉMA RENÉ RAYNAL, LANGOGNE (48)

Rénovation du cinéma existant (190 places) avec mise aux normes d’accessibilité et réaména-gement du hall d’accueil.

 

1 salle.

Marché : Public

Mission : Complète

 

Bet Fluides : RBI

 

Montant : 0,55 M€ HT

S.H.O.N. : 700 m2

 

Livré en : 2011

 

Maître d’ouvrage :

Communauté des Communes du Haut Allier